Products and Services

With over 30 years experience, National Pole & Structure has the knowledge and capabilities to build and deliver your steel structures and poles faster than any other supplier in the industry

Traffic & Lighting

NPS is currently working with highway departments nationally to update the D.O.T's standards to meet current AASHTO LFRD.

Strain Poles

Strain Poles

Tall metal pole with streetlight

A strain pole is a single vertical steel tapered pole upright set at each four corners of an intersection. Cable and grounded wire is strung between the uprights to allow for traffic signal lights to be positioned above the appropriate travel lanes.

Mast Arms

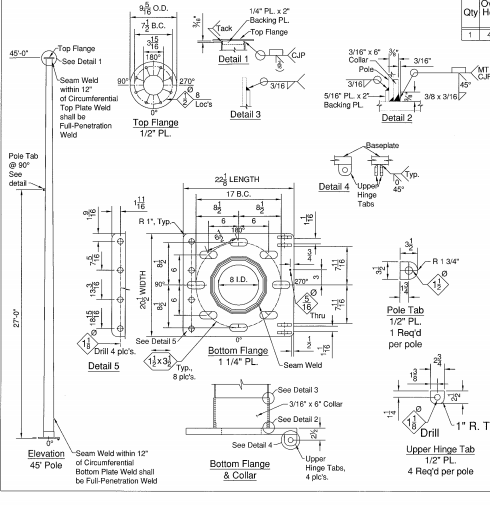
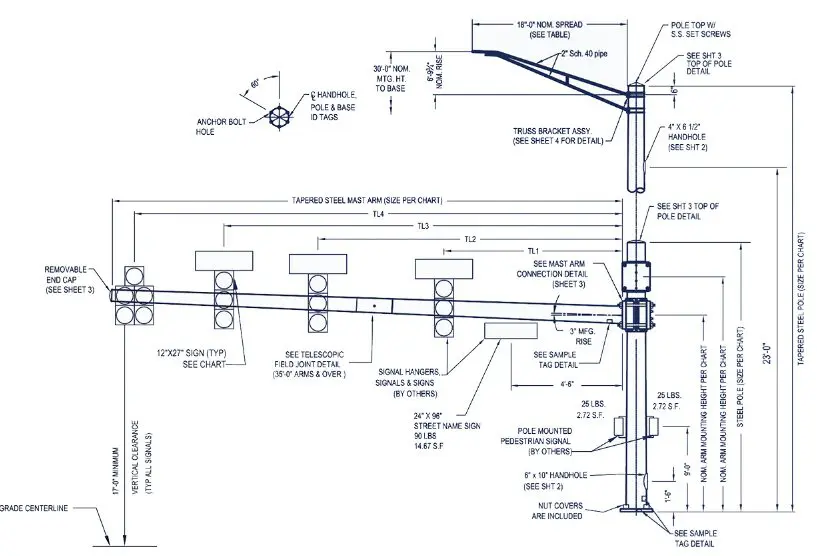
Mast Arms

Detailed streetlight pole schematic

National Pole & Structures Tapered Steel Mast Arms Poles and Strain Poles are designed to meet local, state and federal requirements. AASHTO standards transportation.org are followed and constantly updated, such as the recent addition of LRFDLTS-1 Poles and Structures are available with a standard galvanized finish or a polyester powder coat paint system with the color of your choice.

Highway Road Signs

Highway Road Signs

National Pole & Structure highway traffic sign structures are custom-engineered or built to specifications. These traffic sign bridges can be built from a single large diameter heavy wall pipe (mono-span) or in a tri-cord or box truss design. Any design can be built per AASHTO, DOT.

Wireless Communication

NPS provides new shorter 5G slim line poles, as well as traditional high-rise cellular structures.

5G Poles and Towers

5G Slim Line Pole

Engineering diagram with detailed specifications

Since 5G gives out fast frequency the spacing between towers are both closer and shorter than the traditional 200 foot cellular towers. National Pole and Structure’s slime line design has heavy, thick steel walls. This allows our design to be 40% smaller in diameter than other competitors. The shorter poles usually come galvanized but can be designed to blend in to your desired location. Bring your designs to NPS so we can make them a reality.

Wireless Communication Structures

Wireless Communication Structures

Our Galvanized Steel Monopole design can be made to fit your special zoning or aesthetic needs. Our cellular monopole structure is a cellular telephone site where antennae and electronic communications equipment are placed, usually on a radio mast, tower or monopole, to create a cell (or adjacent cells) in a cellular network.

Utility

Steel Poles for Electrical Transmission and High Voltage Energu Transmission Structures

NPS was contacted by a FEMA (Federal Emergency Management Agency) distributor to supply U.S.A made H-Series Distribution Poles to Puerto Rico to restore the power network after Hurricane Maria. Nearly $50 million of product was expedited in 6 weeks from NPS and fabricators.

Distribution

Distribution

H-Series wood equivalent steel poles are 100% recyclable, stronger than wood, and more flexible than concrete. With H-Series poles are more capable of longer spans than wood and are more appealing to the eye.

Transmission/High Voltage Steel Structures

High Voltage Steel & Transmission Structures

For High Voltage Steel Structures: High Voltage transmission towers or power towers are moving away from lattice structures and being updated with larger mono-pole structures that leave a smaller footprint.

Sporting Lights

Steel Poles for Electrical Transmission and High Voltage Energu Transmission Structures

Steel Cages and Lighting Fixtures

Steel Cages and Lighting Fixtures

Custom Tubular Steel Sports Lighting

Custom Tubular Steel Sports Lighting

Custom Projects

We have worked with developers over the years to design custom light poles and hi-rise advertisement signs. Pictured is a Harley Davidson, 140' tower and custom built poles for Maui, Hawaii